Best Kitchen Layouts for Remodeling in NYC Apartments
The kitchen is the operational hub of the home, where function must meet aesthetic perfectly. However, selecting the right layout is not merely about preference; it is a calculated decision based on the available square footage, structural constraints, and the ergonomic flow of the “Work Triangle” (the path between the stove, sink, and refrigerator).
Whether you are renovating a compact apartment or designing a sprawling family residence, understanding the mechanics of standard layouts is crucial. This guide provides a deep dive into the most effective kitchen configurations: U-shaped, L-shaped, Galley, and Open Concepts.
| Layout Type | Best Suited For | Workflow Efficiency | Key Advantage | Potential Drawback |
|---|---|---|---|---|
| U-Shaped Kitchen Design | Separate, medium-to-large rooms (min. 10ft width). | High: Creates a distinct “dead-end” zone undisturbed by traffic. | Maximum storage and counter space. | Can feel closed off or “boxed-in” without open shelving or windows. |
| Modern L-Shaped Kitchen | Open floor plans and multi-use living areas. | Medium/High: Excellent when paired with an island. | Eliminates barriers; flexible for adding dining tables or islands. | Corner cabinets can be hard to access without organizers (e.g., Le Mans). |
| Galley Kitchen with Island | Long, rectangular spaces or converting a corridor kitchen. | High: Linear efficiency with everything within reach. | Social connectivity; the chef faces guests while prepping. | Requires wide aisles (42-48″) to prevent congestion behind the island. |
| Small Kitchen Floor Plan | Apartments, studios, and accessory dwelling units (ADUs). | Medium: Relies on verticality and smart appliance choices. | Extremely space-efficient; forces clutter reduction. | Limited counter space; requires smaller “apartment-sized” appliances. |
1. The U-Shaped Kitchen Design: Maximum Efficiency
The u shaped kitchen design is widely regarded by chefs and designers as the most efficient layout for food preparation. Occupying three adjacent walls, this layout creates a “dead-end” workflow that prevents traffic from interrupting the cook.

Key Features and Ergonomics
- The Golden Triangle: The U-shape naturally positions the three key work zones (prep, cook, wash) on three different walls, creating a tight, efficient pivot triangle.
- Storage Capacity: It offers the maximum amount of wall and floor cabinet space compared to any other layout.
- Best For: Medium to large separate rooms. It requires a minimum of 10 feet in width to allow for a comfortable central workspace.
Professional Tip: To avoid a “boxed-in” feeling, consider replacing upper cabinets on one wall with open shelving or a large window. This maintains the storage of the u shaped kitchen design while opening up the visual field.
2. The Modern L-Shaped Kitchen: Flexibility and Flow
The modern l shaped kitchen is the chameleon of interior design. Formed by two adjoining walls meeting at a right angle, it is the standard for open-plan living because it naturally opens up to a dining area or living room.

Corner Optimization and Zoning
- The Corner Challenge: The defining feature of an L-shape is the deep corner. Modern solutions include “Magic Corners,” Le Mans pull-outs, or lazy Susans to ensure no space is wasted.
- Island Integration: This layout is the easiest to pair with a central island. The island can house the sink or cooktop, essentially turning an L-shape into a virtual U-shape while maintaining open flow.
- Zoning: One leg of the “L” is typically dedicated to cleanup (sink/dishwasher), while the other focuses on cooking (stove/oven), keeping the workflow logical.
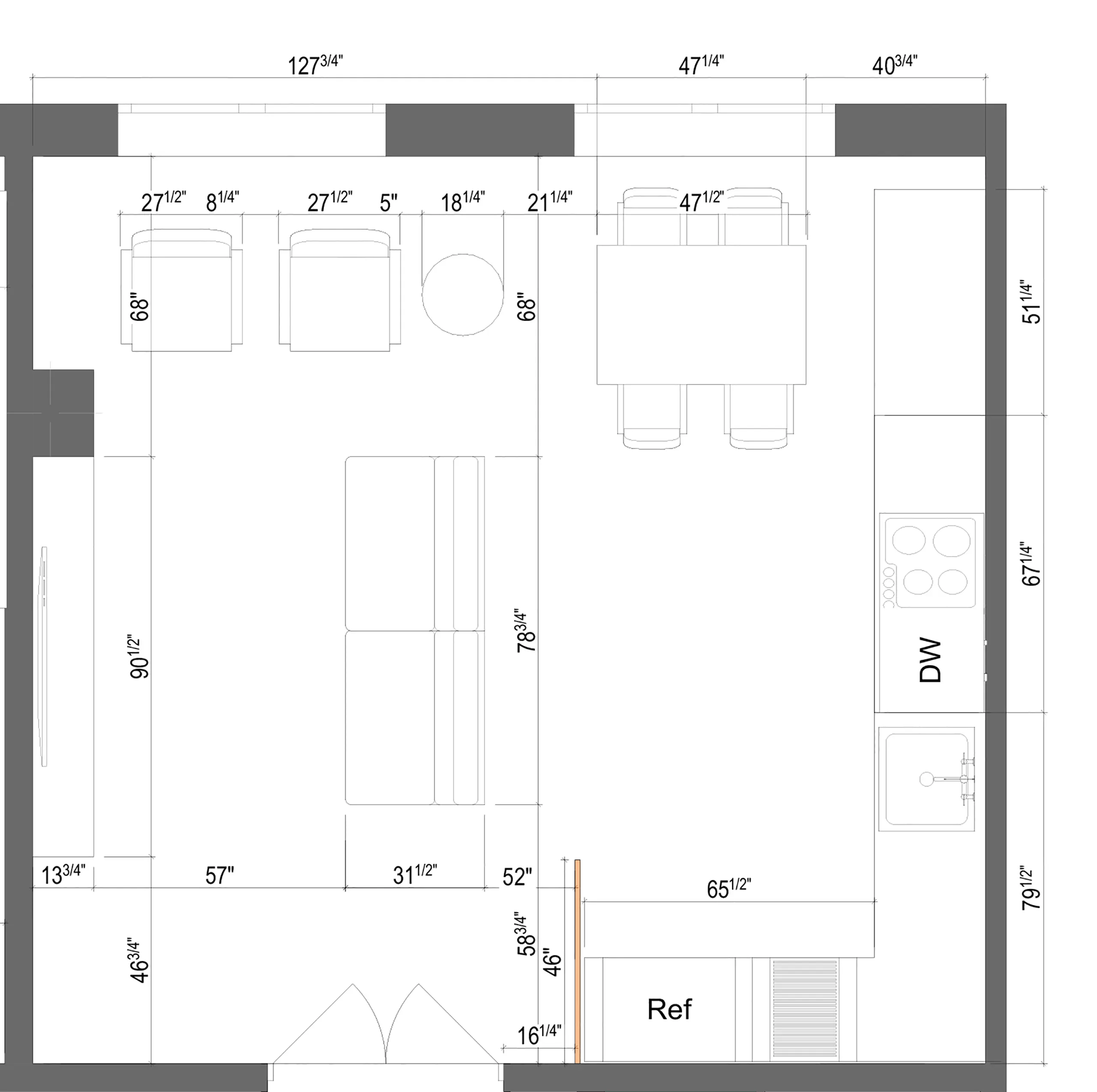
3. The Galley Kitchen with Island: The Linear Evolution
Traditionally, a galley kitchen consists of two parallel runs of cabinetry with a walkway in between. While efficient, it can feel like a corridor. The contemporary evolution is the galley kitchen with island.
Transforming the Corridor
In this layout, one wall of the traditional galley is removed and replaced with an island.
- Social Connection: The chef can face the living area while prepping or cooking on the island.
- Parallel Efficiency: It retains the ergonomic benefits of the double-galley (everything is a step or turn away) but eliminates the claustrophobia.
- Requirements: You need at least 42 to 48 inches of aisle width between the back run of cabinets and the island to allow for appliance clearance and traffic flow.
4. Open Concept Kitchen and Living Room: The Great Unification
The open concept kitchen and living room remains the most requested layout in modern real estate. It fosters togetherness, allowing the cook to interact with guests or watch children while preparing meals. However, it presents unique design challenges.

| Challenge | Layout Most Affected | Professional Design Solution |
|---|---|---|
| “Dead” Corner Space | L-Shaped & U-Shaped | Install “Magic Corner” pull-outs, Lazy Susans, or blind corner optimizers to access deep voids. |
| Visual Clutter | Open Concept Kitchen | Use integrated appliances (panel-ready) to blend the fridge and dishwasher with cabinetry for a furniture look. |
| Noise Interference | Open Concept Kitchen | Invest in quiet-certified dishwashers (under 44 decibels) and high-quality isolation materials. |
| Traffic Jams | Galley & Island Layouts | Ensure the refrigerator is placed at the outer edge of the kitchen so snack-grabbers don’t cross the cook’s path. |
| Cooking Odors | Open Concept | Install a high-CFM range hood vented to the outside, not a recirculating fan. |
Mastering the Open Plan
- Visual Unity: To make the kitchen feel like part of the living space, hide appliances behind custom paneling. Choose cabinetry that resembles furniture and run the same flooring throughout both zones.
- Acoustics: Without walls to buffer sound, dishwashers and blenders can disrupt living room activities. Invest in quiet-certified appliances (look for low decibel ratings).
- Odor Control: High-quality ventilation is non-negotiable. A powerful range hood is essential to prevent cooking smells from settling into living room fabrics.
- Zoning: Use lighting changes (pendants vs. recessed) and area rugs to subtly define where the kitchen ends and the lounge begins.
5. The Small Kitchen Floor Plan: Optimization Strategies
Designing a small kitchen floor plan requires a shift from “wants” to strict “needs.” When square footage is limited, verticality is your best ally.
Maximizing Minimal Space
- Floor-to-Ceiling Cabinetry: utilize the full height of the room. Store rarely used items on the highest shelves.
- The Single-Wall Layout: Often the best choice for small apartments. All appliances and cabinets run along one wall, freeing up the rest of the room for a small dining table.
- Integrated Appliances: Compact, 24-inch appliances and under-counter fridges save massive amounts of space.
- Light Palette: High-gloss finishes and light colors reflect light, making a cramped floor plan feel airy.
6. Planning Your Layout: Tools and Ergonomics
Before committing to a renovation, you must visualize the space. A kitchen design layout tool is essential for testing different configurations against your room’s measurements.
| Measurement Zone | Minimum Requirement | Recommended Standard | Why It Matters |
|---|---|---|---|
| Work Aisle (1 Cook) | 36 inches | 42 inches | Prevents feeling cramped when opening oven/dishwasher doors. |
| Work Aisle (2 Cooks) | 42 inches | 48 inches | Allows two people to pass each other without collision. |
| The Work Triangle | Sum of 10 feet | Sum of 13–26 feet | If too small, you feel cramped; if too large, cooking becomes tiring. |
| Counter Landing Zones | 12 inches | 15+ inches | Essential safety space for setting down hot pans or groceries next to stove/fridge. |
| Seating Clearance | 10 inches (overhang) | 12–15 inches | Legroom for guests sitting at a kitchen island. |
The Ergonomic Checklist
- Aisle Width: Main walkways should be at least 36 inches wide; work aisles for one cook should be 42 inches, and for two cooks, 48 inches.
- The Triangle Calculation: The sum of the three legs of the work triangle should not be less than 13 feet or more than 26 feet.
- Landing Zones: Ensure there is at least 15 inches of countertop space on the latch side of the refrigerator and on both sides of the stove and sink.
Visualization
Using a kitchen design layout tool (software or online planners) allows you to generate 3D renders. This helps you spot potential collisions (e.g., oven doors hitting island drawers) and visualize how a modern l shaped kitchen might look compared to a u shaped kitchen design in your specific space.
Conclusion
Whether you choose the high-efficiency U-shape, the flexible L-shape, or a streamlined galley kitchen with island, the key to success lies in accurate measurement and adherence to ergonomic rules. By prioritizing the work triangle and considering how the kitchen integrates with the rest of your home, you can create a space that is both beautiful and relentlessly functional.
Tatiana Chechina
Interior Designer & 3D Visualizer

One thing many homeowners overlook during kitchen remodeling is how lighting interacts with the layout itself. Even a very functional kitchen can feel cramped if task lighting and sightlines aren’t planned together. In smaller apartments especially, we often use reflective materials, integrated lighting, and continuous surfaces to visually expand the space without changing the footprint.
What is the "Kitchen Work Triangle" and does it still matter?
The Work Triangle is the invisible path between your three primary work zones: the stove, the sink, and the refrigerator. For maximum ergonomic efficiency, the total distance of all three sides should measure between 13 and 26 feet. While modern kitchens often add "zones" (like a baking station or coffee bar), the core triangle remains the golden standard for preventing cook fatigue.
Which kitchen layout is best for an open-concept living space?
The L-Shaped kitchen and the Galley kitchen with an island are the best choices for open concepts. Both layouts remove physical barriers between the kitchen and the living room, allowing the cook to face the social areas while preparing meals.
My kitchen is very small. What is the best layout?
For tight spaces, a Single-Wall layout or a narrow U-Shaped design works best. The key is to utilize vertical space by installing floor-to-ceiling cabinetry and choosing compact, 24-inch integrated appliances to maximize your limited square footage.
The Architecture of Emotion: Designing Homes That Make You Feel Something
What if walls could feel? Not literally, but emotionally. What if your living room knew how to lower
The Psychology of Space: Why Good Design Feels Effortless
When you walk into a room and immediately feel at ease, there’s something deeper at play than just
The Manhattan Palette: Timeless Color Combinations for Urban Interiors
Manhattan has always been a canvas for design – a vertical gallery of glass, steel, and stone
